不動産≫建物≫
【中古戸建】小淵沢14期11号地
価格:1,280万円 管理費:77,900円/年
人気の棒道エリア2LDK
本物件は、人気の棒道エリアの中でも奥まった静かな分譲地の一角に位置しており、どちらかというと別荘利用者が多いものの定住にも適している。 室内の状態が良く、現オーナー様が大切に使っていたことが伺える良物件。 都会の喧騒を離れ心静かに過ごしたい方にはおすすめの物件といえる。
| 物件詳細 | |||
|---|---|---|---|
| 所 在 | 北杜市小淵沢町字棒道下 | ||
| 交 通 | 中央道 小淵沢IC/JR中央線 小淵沢駅 | ||
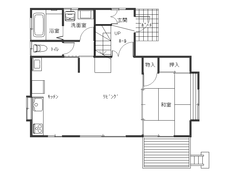
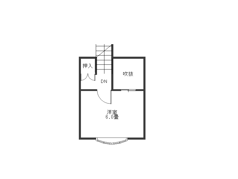
| 建 物 | |||
| 構造・規模 | 木造スレート葺2階建 | ||
| 面 積 | 1F:57.55㎡ 2F:13.24㎡ 計:70.79㎡ | ||
| 築年月 | 平成7年4月 | 駐車場 | 1台 |
| 設 備 | 東京電力 IH | ||
| 上水道 浄化槽 | |||
| 土 地 | |||
| 面 積 | 686㎡(207.51坪) | 私道持分 | なし |
| 権 利 | 所有権 | 地 目 | 原野 |
| 接 道 | 北側公道に約22m、東側公道に約28m接面 | ||
| 備 考 | |||
| 都市計画 | 区域外 | 用途地域 | 指定なし |
| 他の法令上の制限 | 北杜市景観条例・まちづくり条例 | ||
| 建ぺい率 | 20% | 容積率 | 40% |
| 現 況 | 居住中 | 引渡日 | 応相談 |
| 管 理 | 土地管理:49,100円/年 建物管理:35,800円/年 | ||
| その他 | 分譲地規約有 | ||
| 建物現状調査の斡旋あり | |||
| 手数料の他、登記費用・印紙代別途 | |||
| 契約不適合責任免責 | |||
| 取引形態 | 一般媒介 | 手数料 | 488,400円 |
| 情報公開日 | 2026.4.28 | 更新日 | |
※表示内容と異なる場合は現況を優先します。
※条例の内容につきましては北杜市HPよりご確認下さい。リンクはコチラ▶
※ご案内をご希望の方は事前にご予約下さい。 (お問い合わせフォーム▶ ・☎0551-36-6566 ・✉kanri@greenvilla.jp)


















